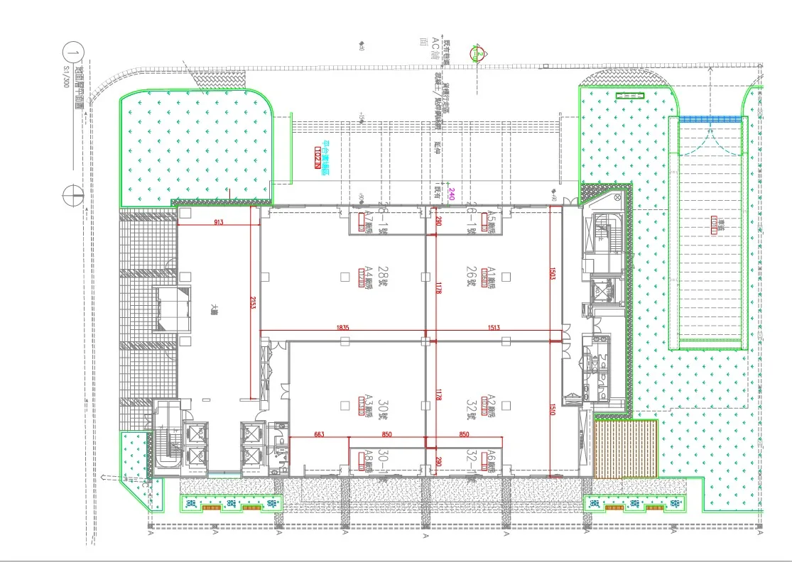
【三重廠辦】- 利達商業大樓15 4 月, 2024/0 評論/在: 所有文章/通過: ZeoYou 嗨!各位好久不見,我是小又!認識小又的就知道,我主要是經營新北工商類用不動產,不管是上新莊廠辦,下新莊透天或是各式商辦店面都有接觸,我又是一個愛分享的人,所以專門架設這個網站提供給需要知識的人,若是您後續在新北有工商類產品需要我幫忙服務我也很期待跟您相遇!今天小又要來跟大家介紹的知識地位於頂崁工業區的廠辦之一 – 【利達廠辦大樓】 利達廠辦地理位置利達廠辦是位於新北市三重區光復路一段61巷26號~30號 臨大路邊有40呎貨櫃車可出入上下貨之區域 具臨先嗇宮捷運站只有550M利達廠辦大樓內部構造 此圖為利達商業大樓一樓圖,一樓為四個單位,二樓為兩個單位,其他樓層皆為兩個單位,有獨立的冷氣空調客梯四部、貨梯一部、車位為獨立管理。利達廠辦優缺點 以上是小又這次帶來的贏翼廠辦分享,若是您有廠辦的需求歡迎加入我的line官方帳號私訊我,之後小又還會繼續創作三重、上新莊廠辦的介紹,若是你想要看哪間廠辦的介紹也歡迎跟我說!期待與你的相遇。 參考文章 【三重廠辦】- 贏翼廠辦【三重廠辦】- 育達廠辦【上新莊廠辦】- 幸福a+廠辦【三重廠辦】- 萬國財星廠辦【三重廠辦】- 台北科技城【三重廠辦】- 阿姆斯壯企業總部【三重廠辦】- 遠東鴻運廠辦(遠東abc廠辦)【三重廠辦】- 利達廠辦【三重廠辦】前瞻企業大樓【工商 | 讓你少賠幾千萬】買廠房注意事項 【工商 | 讓你少賠幾十萬】租廠房注意事項 以下為大樓出租資訊3d圖(114/1/10更新) 我的fb粉絲專業我的ig粉專我要找廠房 回所有文章回首頁 0 0 ZeoYou http://www.wolung.com.tw/wp-content/uploads/2026/02/未命名設計.png ZeoYou2024-04-15 04:31:432024-04-15 04:31:43【三重廠辦】- 利達商業大樓
發表評論
Want to join the discussion?Feel free to contribute!